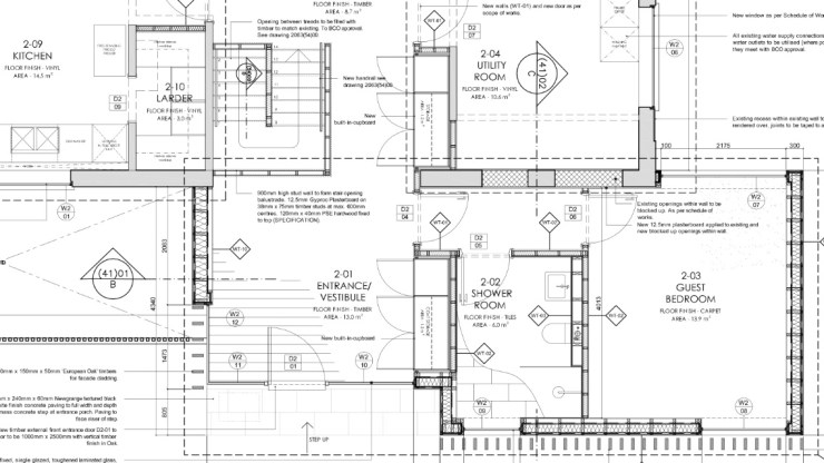
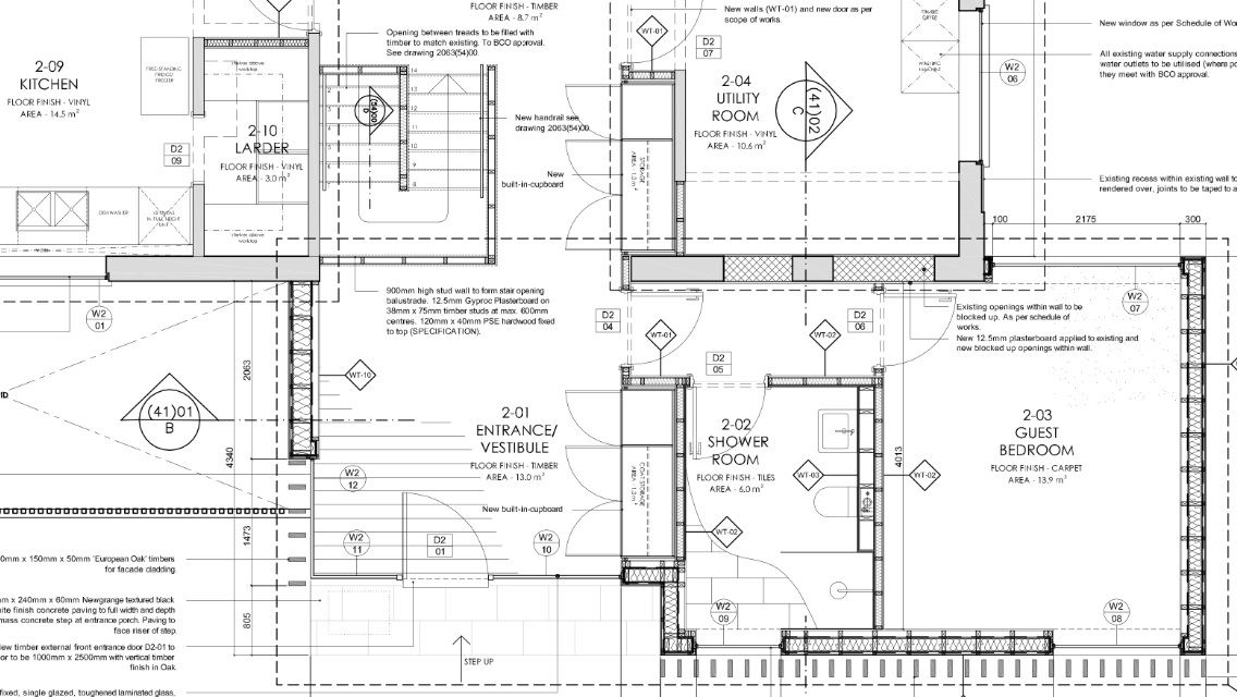
So far, we’ve kept the focus on the work being done during the build phase, but we’ve been working on the design since November 2013. Without giving too much away, here are some images to give an indication of what the house will look like after the revamp…
This is how it will look from the east…
…and from the west
There will be plenty of space for guests…
…and great inside/outside space to enjoy the view at the back
This week we also got some colour mock-ups to help to decide a few colour options. But you’ll have to wait a while to see those… 😉



Quel grand balcon!
LikeLike