One week today, I’m due to fly home for the arrival of our shipping container, the completion of the build and the move-in date. To maximize the impact of the recent developments, an embargo has been put in place to prevent me seeing any more photos of the house.
So, what will this post contain? LOTS of images of the design unfolding… including a colour mock-up of what the finished product will look like. At the very end.
First: The Floor Plan
This is how the house was laid out when it was designed and built by Mr Garrett back in the 1960s (taken from the estate agents’ particulars):
…And how we thought it might be laid out when we prepared an Ideas Book for potential Architects in March 2013. In summary;
- Downstairs; Lose a bedroom in favour of a bathroom and merge the old Family Bathroom and WC into an en-suite for the Master.
- Upstairs; Knock-down the wall between Hall and Lounge. Move the Kitchen to the rear of the house (great views) and put a Snug where the Kitchen had been.
By Christmas 2013 we’d decided to go with CDMS and the Stage AB Feasibility Report had been delivered (fond memories of poring over a beautifully bound hard-copy around the pool, courtesy of the Joyces in WA). This outlined three options in sketch, floor plan, elevation and axonometric form; here are some of the ground floor sketches…
Using Option 2 as the basis for further design, the Stage C Concept Design was delivered in January 2014. Both the Stage AB and Stage C Reports are high quality deliverables that are worthy of reproduction here… but won’t be. If you want to see the designs in-full on the hard copies, you’ll have to come and see us in-person!! Here are a couple of sketches of the floor plans and options for the Extension:
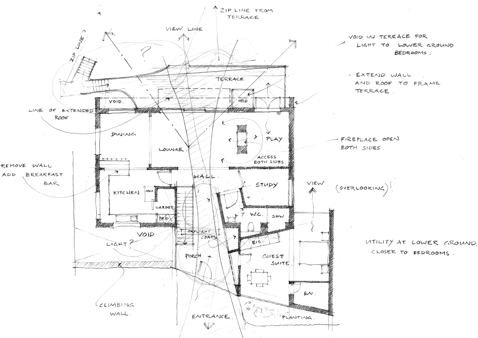
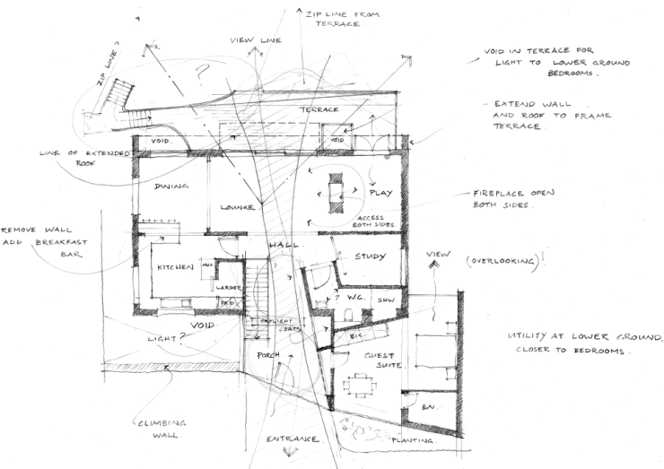
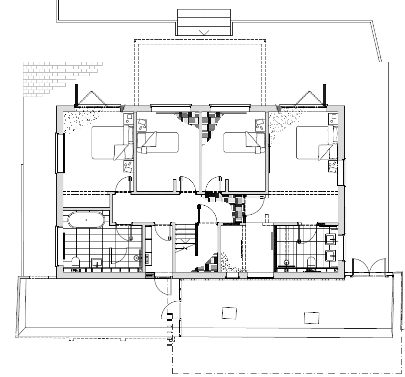
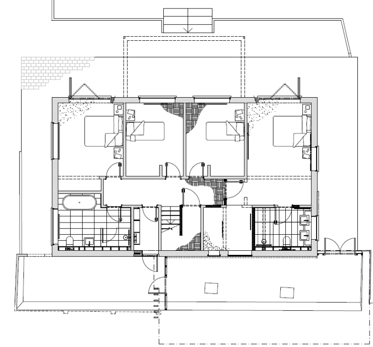
Fast-forwarding many iterations of detailed design work, we’ve ended up with the layouts shown below. In summary: An extension to replace the garage, rearranged bathrooms and bedrooms, a more useable balcony and a few walls built/knocked-down. But fundamentally not too far-removed from what has been there since the 60s – testament to Mr Garrett’s well thought-out design:
Next: The Site, Car Port and Retreat
One of our favourite sketches from the AB report is the analysis of the existing site usage, features and the sun path:
In turn, this lead to ideas on how to lay out the nice-to-haves: Retreat, Car Port and Gates…
A shortage of funds prohibits the Retreat at this stage, but this was one feature we really wanted to build (especially the fire pit). Here are some of the sketches – let’s hope for a windfall!
The same applies for the car port and the entrance gates. One day…


Now for: The Elevations
How to enhance the appearance of the house and increase its kerb-appeal was one of the hardest things for us to visualise, and definitely an area where CDMS’ expertise came into their own. Again, three starter choices from the Stage AB report…
- Option 1
- Option 2

- Option 3

And again, option 2 was developed during Conceptual Design:
During the Detailed Design phase, we got some 3D piccies that we could zoom around using Google SketchUp. As you’ll notice, plans for the full-width balcony with outside stairs didn’t make the cut…
Then during Technical Design (and after much to’ing and fro’ing about the balcony, stairs and windows), we settled on things so that Brickhurst had something to build:
And finally, just for good measure, we added a splash of colour…
(There – I promised, didn’t I??)
Roll-on next Thursday…






















Leave a comment